Тали электрические канатные передвижные
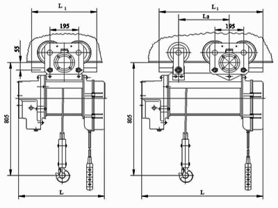
Тали электрические канатные передвижные Тэ 100 г/п 0,5 т и 1 т
Таль электрическая канатные передвижная Тэ 100 предназначена для вертикального и горизонтального перемещения груза вдоль подвесного монорельсового пути в помещениях и на открытых площадках под навесом.
Технические особенности:
1.Два независимых тормоза подъёма;
2. Эксплуатация при температуре от -20°С до +40°С.
По заказу потребителя таль может быть изготовлена:
1. Для эксплуатации при температуре от -40°С до +40°С, от -60°С до +40°С;
2. С высотой подъема до 50 м;
3. С двумя скоростями подъёма;
4. С уменьшенной строительной высотой;
5. С повышенной степенью защиты оболочек электрооборудования IP 54 для талей с высотой подъема 6,3 м и 12,5 м;
6. С частотнорегулируемым приводом передвижения;
7. С устройством плавного пуска и торможения на механизме передвижения;
8. С ограничителем грузоподъёмности;
9. С тормозом на механизме передвижения;
10. С пускорегулирующей аппаратурой французской компании «Шнайдер Электрик»;
11. С радиоуправлением
|
ТЕХНИЧЕСКИЕ ХАРАКТЕРИСТИКИ |
|
|
|
Грузоподъёмность, т |
0,5 |
1,0 |
|
Высота подъёма, м |
6,3 / 12,5 / 20,0 / 25,0 / 32,0 / 36,0 |
|
|
Установленная мощность, кВт |
1,7+0,18 |
|
|
Радиус поворота пути (по заказу),м |
1,5 / 1,5 / прямой путь / прямой путь / прямой путь / прямой путь |
|
|
Наибольшая нагрузка на каток, кН |
3 |
6 |
|
Скорость подъема, м/мин (м/с): основная пониженная (по заказу) диапазон регулирования |
8,0(0,13) 1,2(0,02)...12,0(0,2)
|
|
|
Скорость передвижения, м/мин (м/с) |
24,0(0,4) |
|
|
Монорельсовый путь - двутавровые балки по ГОСТ 19425-74 |
18М, 24М, 30М, 36М, |
|
|
Группа режима работы по ГОСТ 25835 (ИСО 4301) |
3М (М5) |
|
|
Кратность полиспаста |
2/1 |
|
|
Масса, кг |
184 / 217 / 232 / 246 / 255 / 260 |
|



